Since the founding of the Planning Office for Ecological Building in 1979, more than 100 buildings designed by Gernot Minke have been realized in Argentina, Bolivia, Brazil, Chile, Columbia, Germany, Ecuador, Guatemala, India, Paraguay, Russia, Slovakia, Hungary and Uruguay. Some selected buildings are presented here.
RESIDENCES
Residence, Eco-village Kassel, Germany 1985
Duplex at Uchte, Germany 1987
Residence, Eco-village Kassel, Germany 1993
Residence Mount Abu, India 1993
Farmhaus at Warzipur, India 1995 (with DAAT Neu Delhi)
Residence at Rosdorf, Germany 2002 (with Tobias Weyhe)
Orphanage, Kaliningrad, Russia 2003 (with Tobias Weyhe)
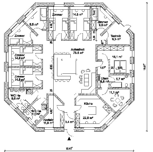
Residence at Bad Schussenried, Germany 2006 (with Tobias Weyhe)
This building with its dome and vaults from earth blocks and its green roof is sheltered against high frequency electro-magnetic waves by 99,6 %.
Residences at Barreal, Argentina 2006 (earth quake resistant adobe structures)
Load bearing strawbale vaults at Tamera, Portugal 2007
Apartments at Buchberg-Wangelin, Germany 2013 (Load bearing strawbale vaults, with Tobias Weyhe)
Tiny House TIBA at Bom Jardin, Brasil 2016/2017
SETTLEMENTS
Eco-village „Soliterra“ at Mühlacker, Germany 2000 (with Tobias Weyhe)
Eco-village“Oikos“ at Reinsberg, Germany 2002 (with Tobias Weyhe)
Eco-village „El-Tucan“ at Emboscada, Paraguay, since 2012 (with Jörg Janisch)
Masterplan
Casa duplex
Casa hobbit
Casa bóveda
Casa cúpula
PUBLIC BUILDINGS
Waldorf-kindergarten Sorsum, Germany 1997 (with Tobias Weyhe)
Seminar room, University Kassel, Germany 2000 (load bearing straw bale walls, with Dittmar Hecken and Friedemann Mahlke)
Kindergarten Oranienburg-Eden, Germany 2002 (with Tobias Weyhe)
Sound studio, Westerwald 2004 (with F. Mahlke)
Seminar room at Tamera, Portugal 2006
Dome, Playground Wöhrder Wiesen at Nürnberg, Germany 2006 (with Tobias Weyhe)
Market Acuarela at Mesa de los Santos, Bucaramanga, Colombia 2007
Kindergarten Acuarela Mesa de los Santos, Bucaramanga, Colombia 2007 (with Leonidas Gomez)
Garden-Cafe at Buchberg-Wangelin 2014 (with Tobias Weyhe)
Class rooms, Waldorf-School at Limache, Chile 2016
Temazcal (Indianische Schwitzhütte) TIBA at Bom Jardin, Brasil 2016
Kindergarten at Catripulli, Chile 2018
Kindergarten Bellington, U.K. 2020
Adobe dome, Necropolis, Kassel, Germany 2021
SACRAL BUILDINGS
Meditation hall at Bad Zwesten, Germany 1996 (with Tobias Weyhe)
Meditation hall at Mt. Abu, India 1996
Mosque at Wabern, Germany 2007 (with T. Weyhe)
Meditation dome TIBA at Bom Jardin, Brasil 2007
OFFICE BUILDINGS
Indian Institute of Technology, New Delhi, India 1993
Office building at Hrubý Súr, Slowakia 2010 (Loadbearing straw bale dome and vaults, with Createrra)
Office building at Wissenschaftspark Hannover, Germany 2003 (with Tobias Weyhe)
MULTI-PURPOSE HALLS
Goetheinstitut at La Paz, Bolivia 2000 (with Alexander Fischer)
Seminar-center at Picada Cafe, Brasilien 2005
Comunity building La Tahona at Rocha, Uruguay 2007
Cúpula de adobe, Ráquira, Columbia 2015
Cúpula de adobe, Villa General Belgrano, Argentinia 2015
Cúpula de adobe, Aiguá, Uruguay 2020
Auditorium, Ecovillage “Valle Tucán”, Emboscada, Paraguay
LOW-COST-HOUSING PROTOTYPES
Test building at Kassel University, Germany 1975
Low-cost-housing prototype, Guatemala 1978 (earthquake resisitant rammed earth structure)
Earthquake resistant sand bag structure, Guatemala 1978
Test building, Kassel University, Germany 1982
Prototype social housing, Babahoyo, Ecuador 1989
Earthquake resistant residence, Chile 2003
Social housing prototype, Sao Leopoldo, Brasil 2003
Social housing prototype, Viamao, Brasil 2003
Social housing prototype, Sentinela do Sul, Brasil 2005 (with Marcio D’Avila)
Earthquake resistant sand bag structures, Nepal 2015 (with Ithaka Institute, Switzerland)
LIGHT-WEIGHT COVERS
Alpamare-Bad at Bad Tölz, Germany 1971
Bus stop at Stuttgart, Germany 1973 (with B. Burckhardt)
Production hall at Salach, Germany 1974
Ice rink cover, Esslingen 1976 (with G. Schöfl)
Cafeteria at GuatemalaCity, Guatemala 1981
Temporary church, BUGA Kassel, Germany 1981
Bamboo grid shell at Kassel, Germany 1982
Bamboo grid shell at Candelaria, Colombia 2009
GREEN WALLS, VERTICAL GARDENS
Built within research projects (1977-1982) and Workshops (since 2010)
Cushion elements, Kassel, Germany 1977
Shingles serving as plant containers , Kassel, Germany 1977
Used car tires, Düsseldorf and Kassel, Germany 1980
Green wall, Medellin, Colombia 2010
Green column, Medellin, Colombia 2010
Green columns, Tenjo and Piedecuesta, Columbia 2011
Green wall Medellin, Colombia 2011
Gabions and Hoses, Tenjo, Colombia 2011
Sculpture, Piedecuesta 2011, Colombia
Green wall, Piedecuesta, Colombia 2011
Green wall, Cali, Colombia 2012
Green column, Cali, Colombia 2012
Green walls, Cali, Colombia 2012
Green column, Cali, Colombia 2012
Green column, Thessaloniki, Greece 2012
Wall with containers, Thessaloniki, Greece 2012
Wall from concrete blocks, Thessaloniki, Greece 2012
Plant bags Cali, Colombia 2012
Green wall, Uruguay 2012
Gavions, Uruguay 2012
Green wall, Cali, Colombia 2012
Green column, Cali, Colombia 2012
Bucket column, Cali, Colombia 2012
Bucket column, Buenos Aires, Argentina 2013
Workshop „Jardines Verticales“ León, Mexico 2014
Workshop „Jardines Verticales“ San José, Costa Rica 2014
Workshop „Jardines Verticales“ Paine, Chile 2016
Workshop „Jardines Verticales“ TIBA, Bom Jardin, Brasil 2017
Workshop „Jardines Verticales“ Guanajuato, Mexico 2017
